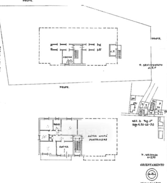
Appartamento in vendita Via San Giovanni Bosco 19, Sarego
Salva
Casa.it
1/31
  • Street View
  • Map