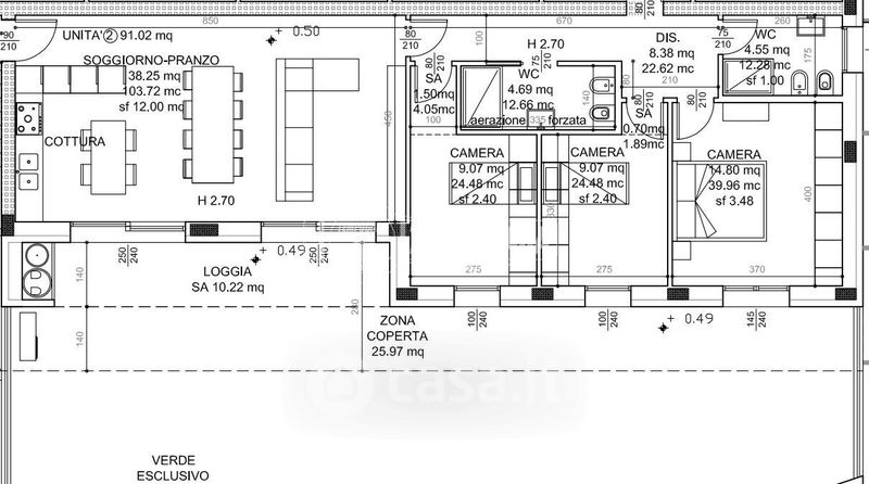
Appartamento in vendita Via G. Vasari , Selvazzano Dentro
Salva
Casa.it
1/16
  • Street View
  • Map