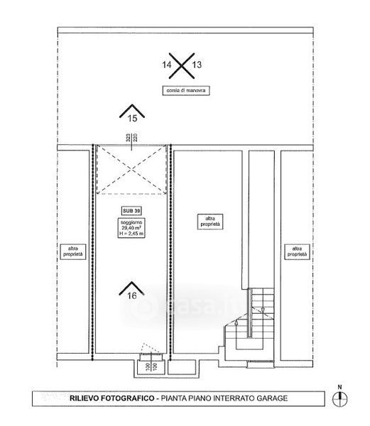
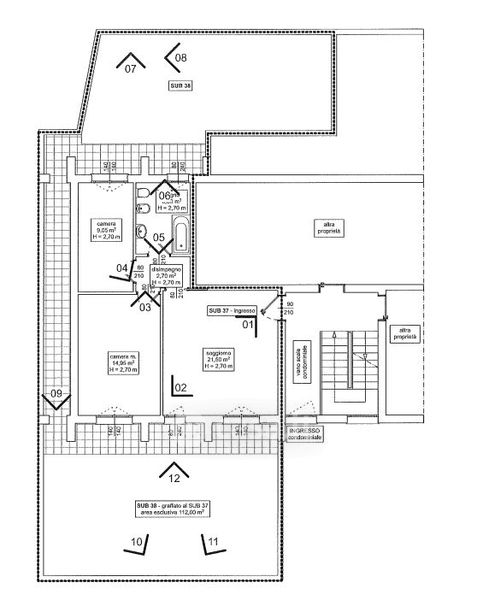
Appartamento in vendita Via Nazionale , Spresiano
Salva
Casa.it
1/38
  • Street View
  • Map