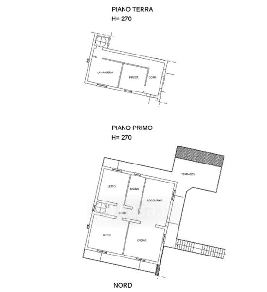
Appartamento in vendita Via A. Benetti 11, Taglio di Po
Salva
Casa.it
1/35
  • Street View
  • Map