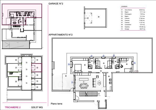
Appartamento in vendita Via Peschiera , Thiene
Salva
Casa.it
1/30
  • Street View
  • Map