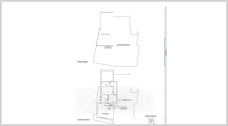
Appartamento in vendita Piazza San Pio X , Tombolo
Salva
Casa.it
1/37
  • Street View
  • Map