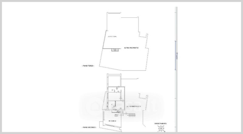
Appartamento in vendita Via Guglielmo Ciardi , Venezia
Salva
Casa.it
1/37
  • Street View
  • Map