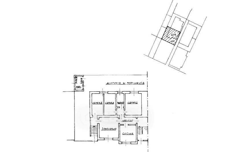
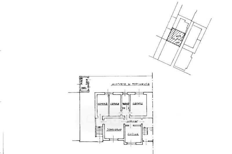
Appartamento in vendita Calle Volpi 40, Venezia
Salva
Casa.it
1/35
  • Street View
  • Map