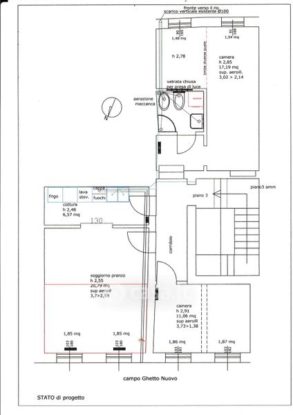
Appartamento in vendita Fondamenta Trapolin 2600, Venezia
Salva
Casa.it
1/21
  • Street View
  • Map