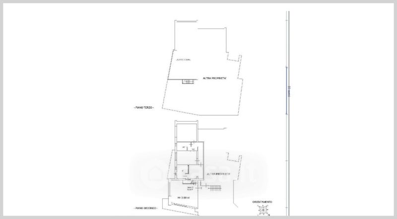
Appartamento in vendita Sestiere Cannaregio , Venezia
Salva
Casa.it
1/32
  • Street View
  • Map