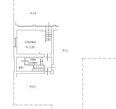
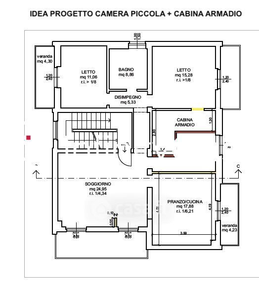
Appartamento in vendita Via Cismon , Verona
Salva
Casa.it
1/49
  • Street View
  • Map