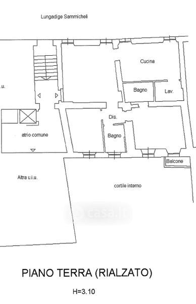
Appartamento in affitto Lungadige Sammicheli 23, Verona
Salva
Casa.it
1/36
  • Street View
  • Map