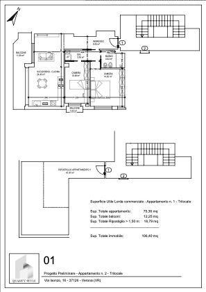
Appartamento in vendita Viale Nino Bixio , Verona
Salva
Contatta l'inserzionista
Casa.it