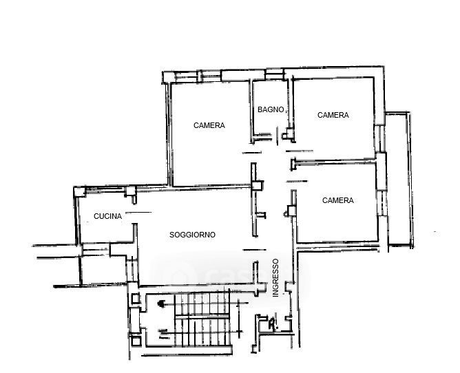
Appartamento in vendita Via Colonnello Giovanni Fincato 64, Verona
Salva
Casa.it
1/18
  • Street View
  • Map