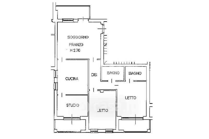
Appartamento in vendita Via Bassone , Verona
Salva
Casa.it
1/42
  • Street View
  • Map