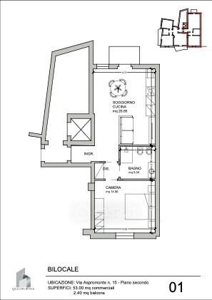
Appartamento in vendita Via Aspromonte 15, Verona
Salva
Casa.it
1/14
  • Street View
  • Map