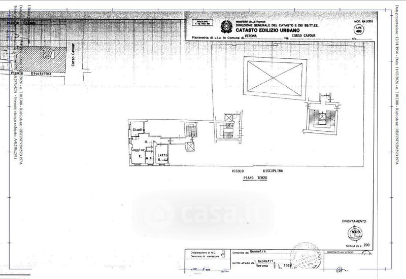
Appartamento in affitto Corso Cavour , Verona
Salva
Casa.it
1/28
  • Street View
  • Map