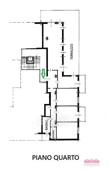
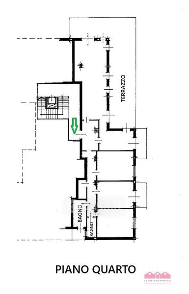
Appartamento in vendita Piazza Araceli , Vicenza
Salva
Casa.it
1/19
  • Street View
  • Map