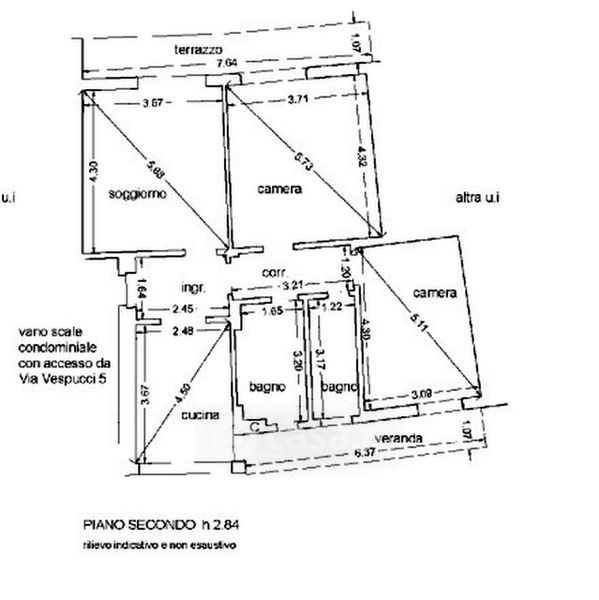
Appartamento in vendita Via Amerigo Vespucci 5, Vicenza
Salva
Casa.it
1/19
  • Street View
  • Map