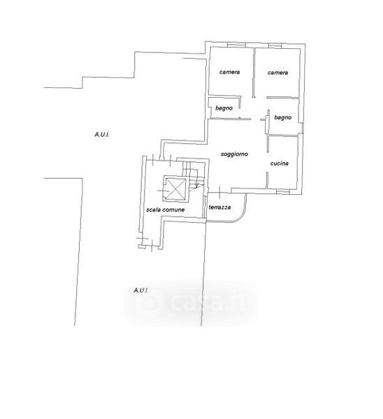
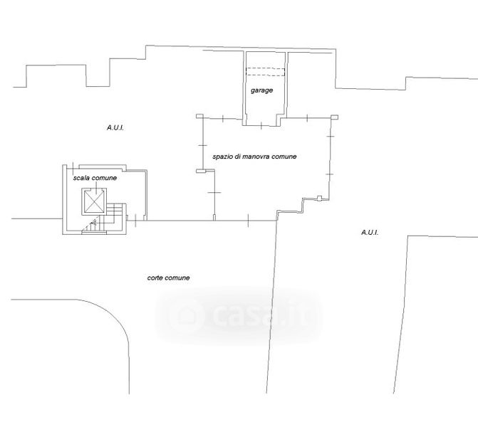
Appartamento in vendita Via G. E. di Velo 54 -84, Vicenza
Salva
Casa.it
1/14
  • Street View
  • Map