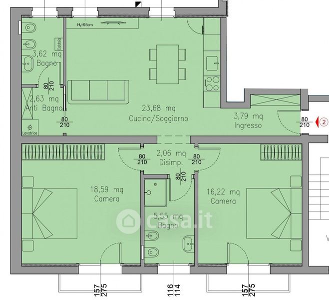
Appartamento in vendita Via Nino Bixio 17 -1, Vicenza
Salva
Casa.it
1/12
  • Street View
  • Map