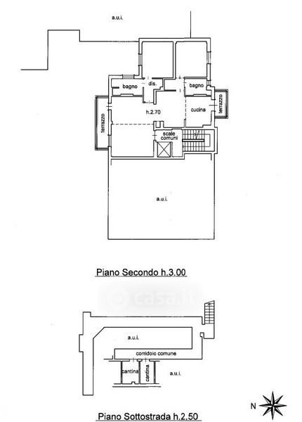
Appartamento in vendita Via Carlo Cattaneo , Vicenza
Salva
Casa.it
1/27
  • Street View
  • Map