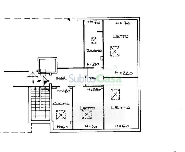
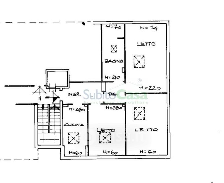
Attico/Mansarda in vendita Via dei Peligni 30, Chieti
Salva
Casa.it
1/41
  • Street View
  • Map