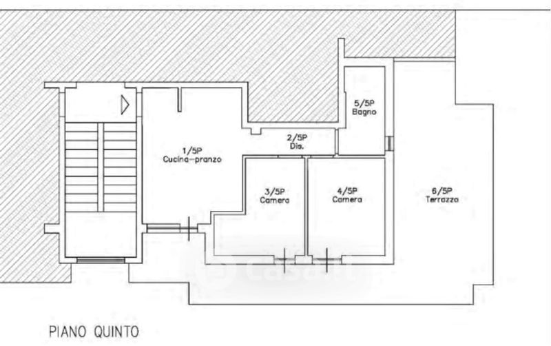
Attico/Mansarda in vendita Via Emilio Baldacci 38, San Salvo
Salva
Casa.it
1/53
  • Street View
  • Map