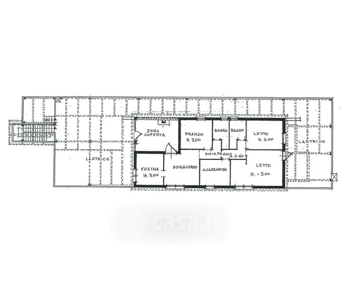
Attico/Mansarda in vendita Via Pontevecchio , Bologna
Salva
Casa.it
1/54
  • Street View
  • Map