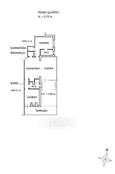
Attico/Mansarda in vendita Viale Venezia 4, Lignano Sabbiadoro
Salva
Casa.it
1/20
  • Street View
  • Map