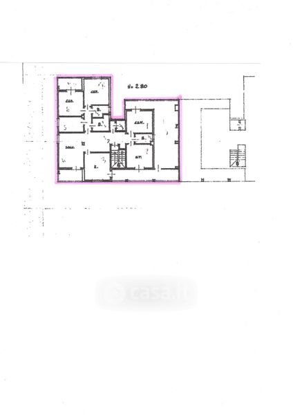
Attico/Mansarda in vendita Via Meduna , Pordenone
Salva
Casa.it
1/20
  • Street View
  • Map