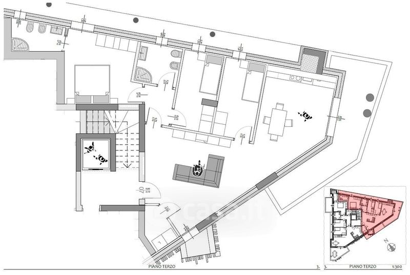
Attico/Mansarda in vendita Via Giosuè Carducci , Pordenone
Salva
Casa.it
1/15
  • Street View
  • Map