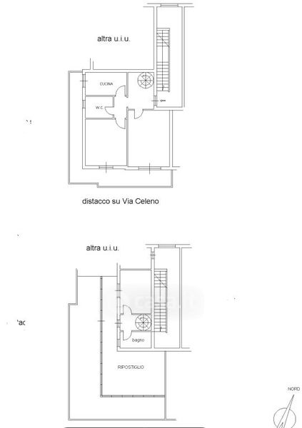
Attico/Mansarda in vendita Via Celeno 6, Anzio
Salva
Casa.it
1/62
  • Street View
  • Map