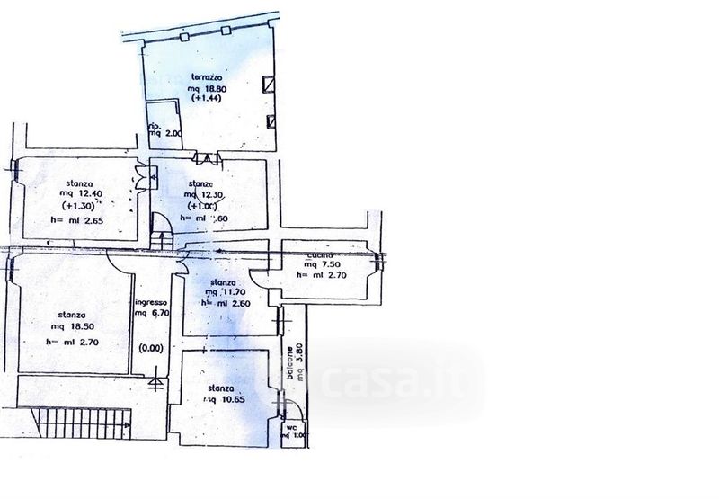
Attico/Mansarda in vendita Via San Martino , Frascati
Salva
Casa.it
1/18
  • Street View
  • Map