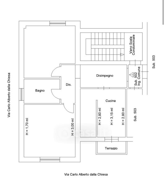
Attico/Mansarda in vendita Via Generale Carlo Alberto dalla Chiesa , Labico
Salva
Casa.it
1/27
  • Street View
  • Map