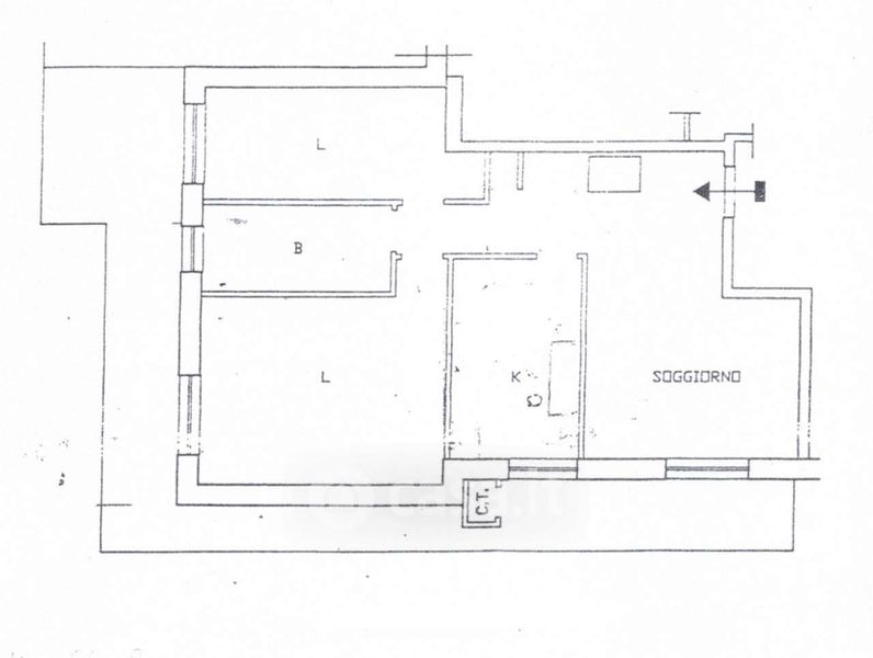
Attico/Mansarda in vendita Via Antonio Galtarossa , Roma
Salva
Casa.it
1/28
  • Street View
  • Map