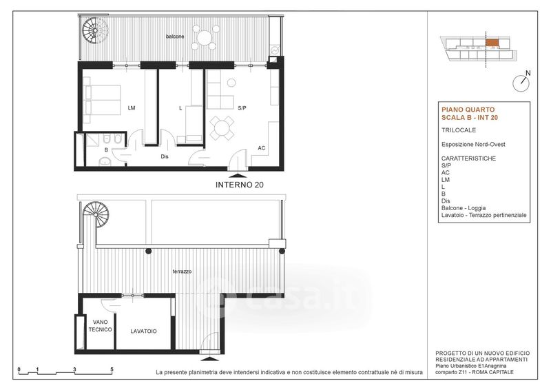
Attico/Mansarda in vendita Via Anagnina 169 A, Roma
Salva
Casa.it
1/48
  • Street View
  • Map