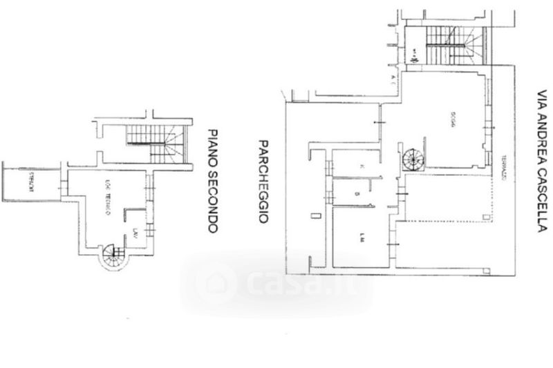
Attico/Mansarda in vendita Via Andrea Cascella , Roma
Salva
Casa.it
1/26
  • Street View
  • Map