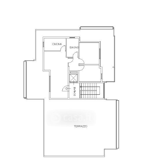
Attico/Mansarda in affitto Via Campo Catino 45, Roma
Salva
Casa.it
1/10
  • Street View
  • Map