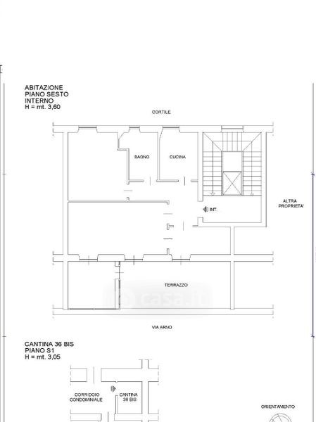
Attico/Mansarda in vendita Via Arno 89, Roma
Salva
Casa.it
1/20
  • Street View
  • Map