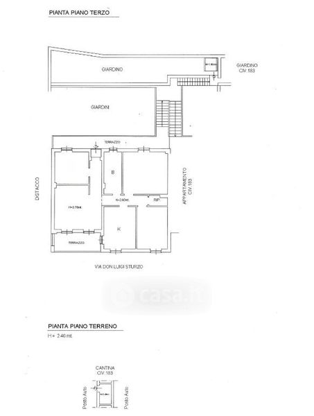
Attico/Mansarda in vendita Via Don Luigi Sturzo 185, Genova
Salva
Casa.it
1/18
  • Street View
  • Map