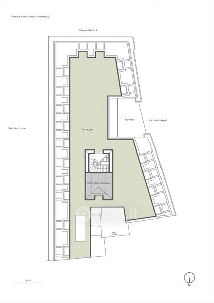
Attico/Mansarda in vendita Via San Luca 2, Genova
Salva
Casa.it
1/32
  • Street View
  • Map