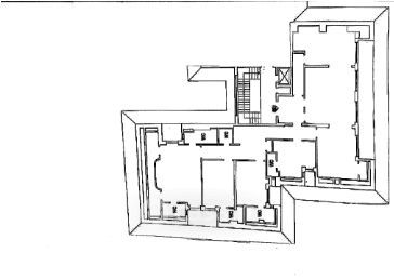
Attico/Mansarda in vendita Via San Pio X 9, Genova
Salva
Casa.it
1/46
  • Street View
  • Map