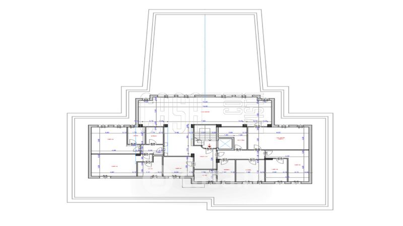
Attico/Mansarda in vendita Via Gozzano 44, Lerici
Salva
Casa.it
1/35
  • Street View
  • Map