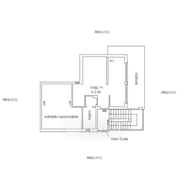
Attico/Mansarda in vendita Via degli Alpini 70, Loano
Salva
Casa.it
1/45
  • Street View
  • Map