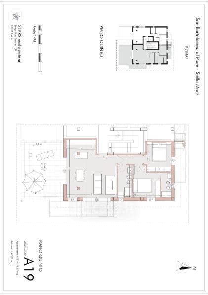
Attico/Mansarda in vendita Lungomare delle Nazioni 50, San Bartolomeo al Mare
Salva
Casa.it
1/5
  • Street View
  • Map