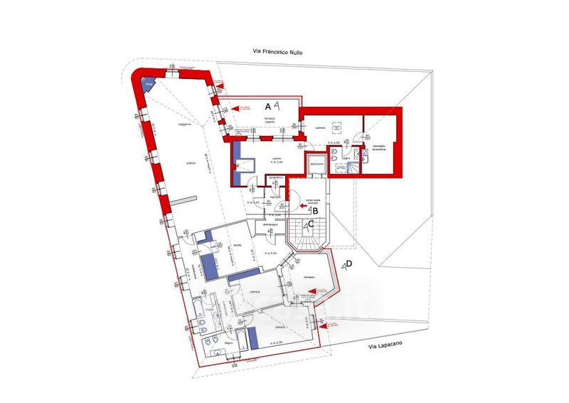
Attico/Mansarda in affitto Via Francesco Nullo , Bergamo
Salva
Casa.it
1/22
  • Street View
  • Map