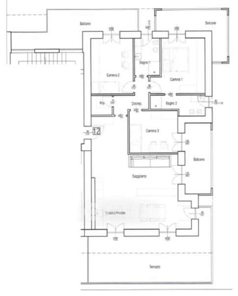
Attico/Mansarda in vendita Via Clemente Alberti 13, Carugate
Salva
Casa.it
1/28
  • Street View
  • Map