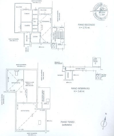
Attico/Mansarda in vendita Via Torretta 3, Cesano Maderno
Salva
Casa.it
1/20
  • Street View
  • Map