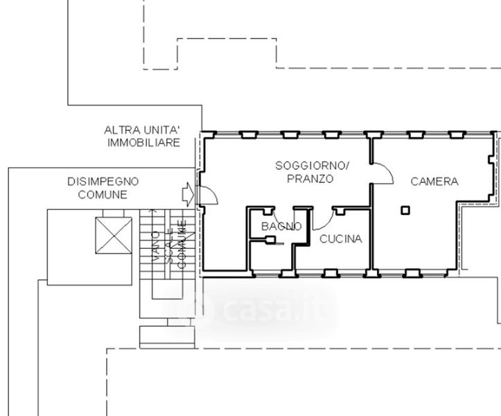
Attico/Mansarda in vendita Viale Varese 35, Como
Salva
Casa.it
1/12
  • Street View
  • Map