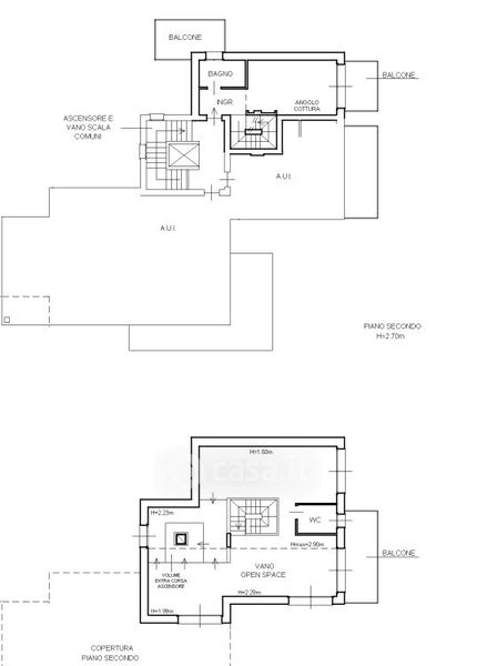
Attico/Mansarda in vendita Brughieretta , Leggiuno
Salva
Casa.it
1/22
  • Street View
  • Map