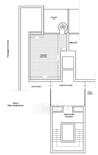
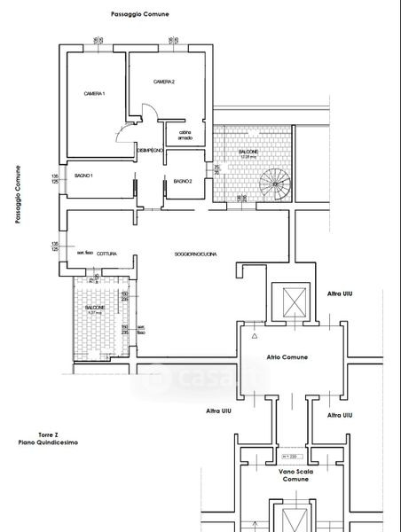
Attico/Mansarda in vendita Via Savona 127, Milano
Salva
Casa.it
1/66
  • Street View
  • Map