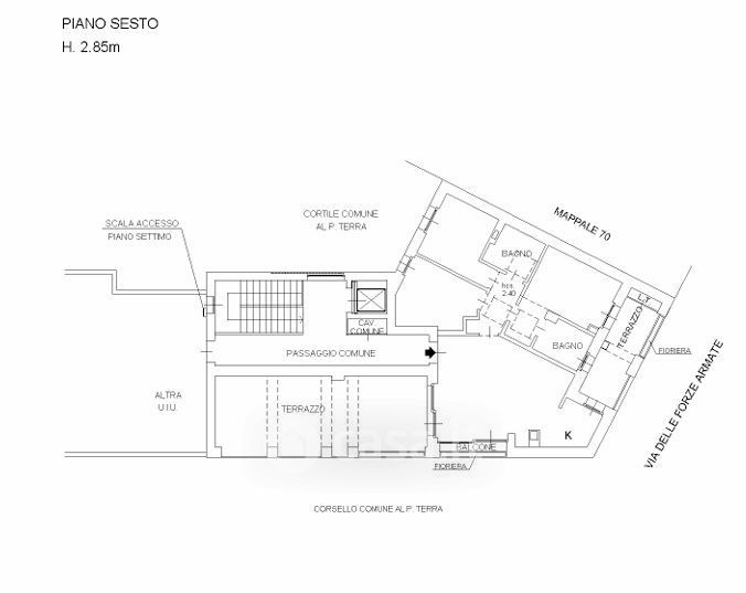
Attico/Mansarda in vendita Via delle Forze Armate 195, Milano
Salva
Casa.it
1/18
  • Street View
  • Map