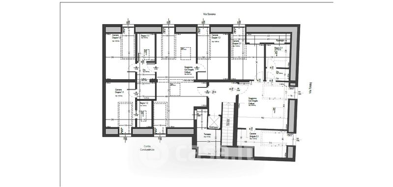
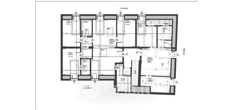
Attico/Mansarda in vendita Via Leone Tolstoi 10, Milano
Salva
Casa.it
1/24
  • Street View
  • Map